Architecture
ADUs Come Of Age In A Higher-For-Longer Era
As more municipalities ease residential zoning, offering optional ADU spaces in new homes that can be rented out is one way for homebuyers to supplement their income and offset their mortgage payment.
Photo: The optional ADU for the Josie model features a studio layout with private entry off the side of the home, a full kitchen, a full bath, and a stacked washer and dryer. Jess Blackwell Photography, courtesy NHTI
There’s an overarching need for new solutions in housing around density and attainability. In the coming weeks we will be digging into a series of projects and ideas that address that need. The Builder’s Daily has partnered with the team at the New Home Trends Institute by John Burns Research and Consulting to spotlight communities and developments from its DesignLens library that might serve as inspiration to other homebuilders across the country.
Accessory Dwelling Unit Options
ADUs have continued to grow in popularity, and instead of just focusing on multigenerational opportunities, more builders are offering the option to create a rental suite or ADU as part of a new home with the assumption that some will rent out the space for additional income. The rules vary state to state, but there may be stipulations in place that require homeowners to live in the main house as their primary residence with a long-term lease for the ADU space.

FieldStone Homes out of Utah doesn’t just assume buyers will rent out the optional ADU in the basement, they designed an option explicitly for that purpose,” says Kristin Matthews, vice president, consulting at John Burns. “Rental suites that buyers can easily add to their home not only give them a separate space to rent out, but it also allows them to use the potential rental income to qualify for a loan.
According to Scott Wild, senior vice president, consulting at John Burns, the ADUs that most new-home builders currently offer are essentially variations of a lock-off, multigenerational suite. He notes that the next wave of ADUs, some of which are starting to hit the market, will be designed to function independently from the primary home and be more suitable for a separate family to live in.
Wild says the highest growth in ADUs will be at the “barbell” ends of the home market. “It’s a no-brainer to add an ADU in the most desirable locations, where the cost to build is easily outweighed by added value. In more affordable locations, ADUs can help with buyer qualification and increase utility for payment-sensitive homeowners,” he explains. “Wherever local jurisdictions are making it easier to add ADUs they are tapping into pent-up demand. Expect more ADUs in places like Nashville, Chicago, and Cincinnati.”
Tribute at Lyric
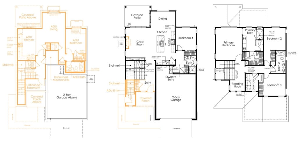
Shea Homes is offering ADUs in some of its plans. At its Tribute at Lyric community in Lone Tree, Colorado, the builder embraced the topography of the site and provides ADU options in two of its models. According to Shea Homes, the most popular options at Tribute have been the ADU and finished basement to add extra space. Several plans both upslope and downslope have the option to add in the ADU either next to the tuck-under garage or in the finished basement.
Shea worked with architecture firm WHA at Tribute. The Layla plan features an ADU in the basement with an upgraded private entry (versus standard interior access), a large kitchen and living area, a walk-in closet, full bath, and laundry closet. With the ADU (below), the model is 3,055 square feet with five bedrooms, four baths, and a two-car garage.

The Layla ADU includes a large kitchen and living area with enough space for a dining setup within the kitchen. The space also benefits from a covered patio and access to the backyard.

A bedroom with walk-in closet, full bath, and laundry closet with stacked washer and dryer round out the optional ADU in the Layla plan.

The 36-foot-wide, three-story Josie model ranges from 1,945 square feet to 2,426 square feet with up to four bedrooms, up to three baths, and a two-car garage. The plan features an optional first-floor studio ADU (below).

The Josie studio ADU is ideal for one or two people, with a full kitchen, private entry off the side of the home, and a cleverly designed area for the bed that’s separate from the seating area (below).

For more project details, inspiration, or insights, reach out to Jenni Nichols at jnichols@jbrec.com.
Project Details
TRIBUTE AT LYRIC, Lone Tree, CO
BUILDER: Shea Homes
ARCHITECT: WHA (William Hezmalhalch Architects)
INTERIOR DESIGNER: KTI (Kimberly Timmons Interiors)
HOME SIZE: 1,795 square feet to 3,189 square feet
AVERAGE LOT SIZE: 3,500 square feet
TOTAL HOMES: 184
GRAND OPENING: June 2023
MORE IN Architecture
Could Bigger Apartments Reverse America's Birth Decline?
A new study from the Institute for Family Studies links shrinking apartments to falling birth rates. It suggests developers could help stabilize the nation’s population by building more family-sized rental homes.
Car-Free, Heat-Smart, People-First: Culdesac’s Bold Model
Architect Daniel Parolek and Opticos Design answered with Culdesac Tempe, the nation’s first purpose-built, car-free community. With shade-rich design, missing middle housing, and a self-sustaining mix of homes and businesses, it’s a climate-conscious model now scaling to nearby Mesa.
How A Gamble On Floor Plans Can Be a Win for Homebuilders
If done right, floor plans can remove uncertainty for homebuyers and help builders close the sale. My top advice: Keep things simple, and make sure your teams understand how to read plans.